Pre-designed duplexes ready for your next project.
Our ready-to-use duplex designs are designed to streamline your development process. They have been meticulously crafted and are ready for the approval process.
However, we understand the importance of flexibility, and we can modify and customise them based on your specific needs. Whether it's adjusting for land constraints, orientation, specifications, or council requirements, we can customise the designs promptly, ensuring a smooth project process.
Explore designs for 10m min. frontage blocks
Feasibility Analysis
Curious about the possibilities for your property?
Our feasibility studies help you determine the viability of your project.
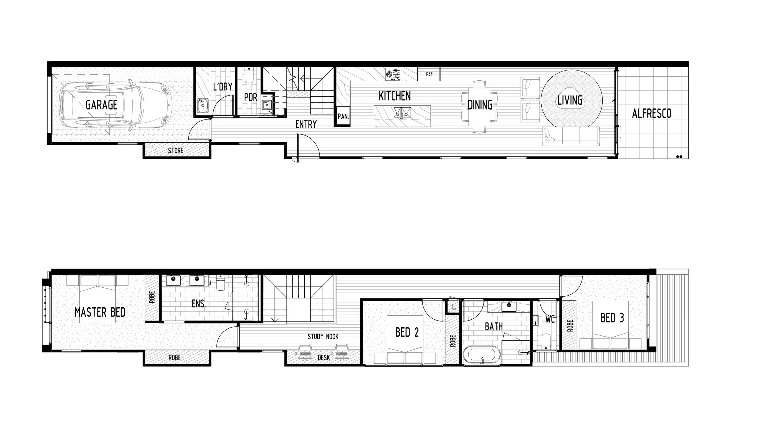
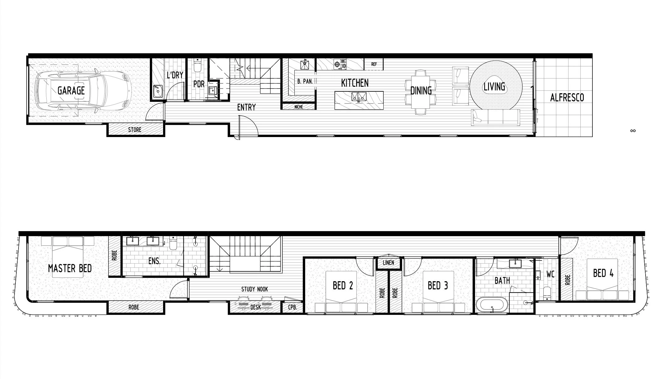
Designs for minimum block width - 20m
Magnolia
20m
Minimum block width
3
2
2.5
1
2
Internal areas
External areas
Total
267 m2
23 m2
290 m2
Po
20m
Minimum block width
3
2
2.5
-
2
182 m2
10 m2
192 m2
Internal areas
External areas
Total
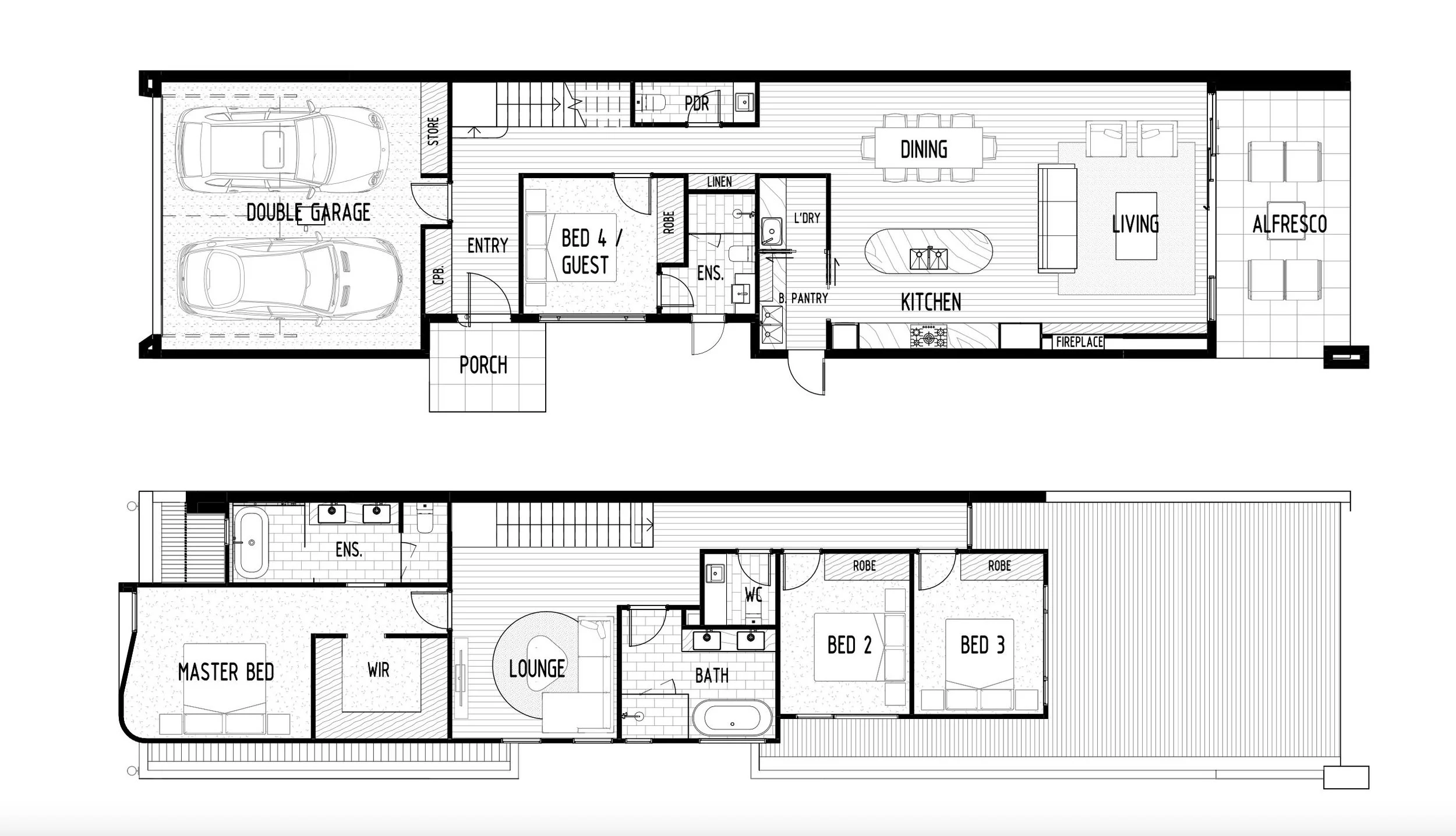
Paloma
20m
Minimum block width
4
2
3.5
1
2
Internal areas
External areas
Total
304 m2
34 m2
338 m2
Maya
20m
Minimum block width
3
1
2.5
1
2
264 m2
23 m2
287 m2
Internal areas
External areas
Total
Lilly
20m
Minimum block width
4
2
2.5
1
2
Internal areas
External areas
Total
279 m2
24 m2
303 m2
Lana
20m
Minimum block width
3
2
2.5
1
2
268 m2
23 m2
291 m2
Internal areas
External areas
Total
Ivy
20m
Minimum block width
4
2
3.5
1
2
Internal areas
External areas
Total
306 m2
29 m2
335 m2
Simplify the facades
Don’t want to over capitalise on your property? Let us show you how we can simplify the style and ambiance of any of our designs.
Designs for minimum block width - 15m
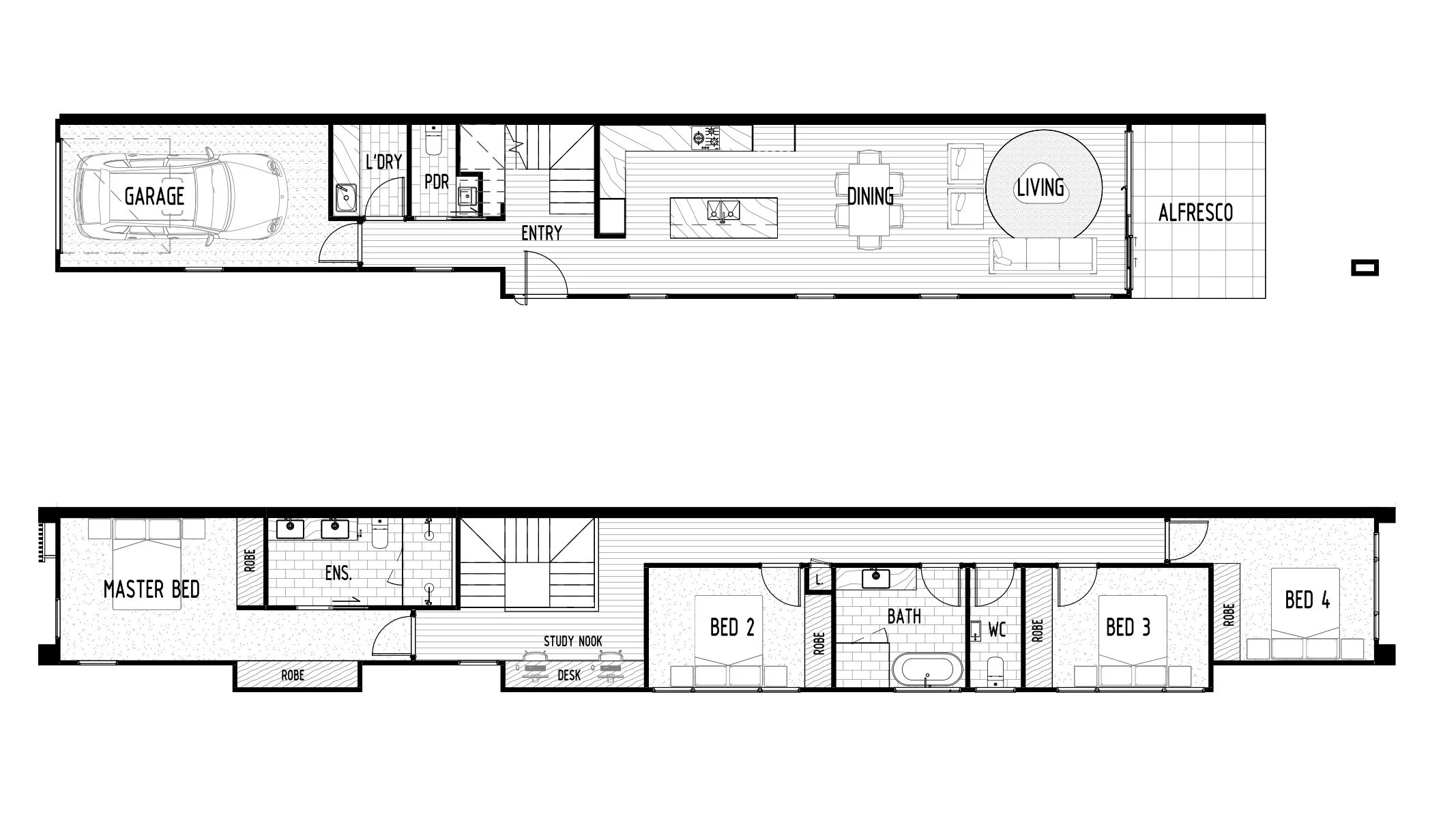
Isla
15m
Minimum block width
4
2
3.5
-
2
Internal areas
External areas
Total
247 m2
20 m2
267 m2
Rosa
15m
Minimum block width
4
2
3.5
-
2
Internal areas
External areas
Total
257 m2
20 m2
277 m2
Nora
15m
Minimum block width
4
2
2.5
1
2
Internal areas
External areas
Total
230 m2
20 m2
250 m2
Beatrice
15m
Minimum block width
4
2
3.5
-
2
Internal areas
External areas
Total
253 m2
20 m2
273 m2
Rummi
15m
Minimum block width
4
2
3.5
-
2
297 m2
20 m2
294 m2
Internal areas
External areas
Total
Nadia
15m
Minimum block width
4
2
3.5
-
2
Internal areas
External areas
Total
257 m2
20 m2
277 m2
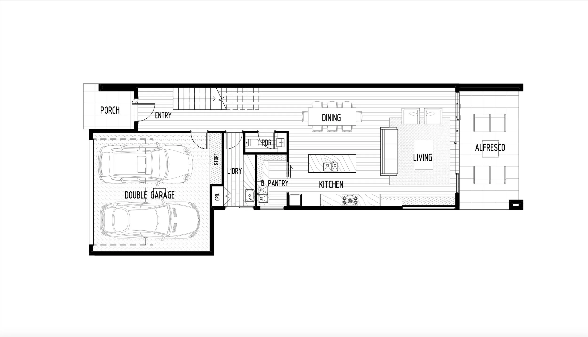
Designs for minimum block width - 10m
Lola
10m
Minimum block width
4
1
2.5
1
1
209 m2
11 m2
220 m2
Internal areas
External areas
Total
Sofie
10m
Minimum block width
4
2
3.5
-
2
Internal areas
External areas
Total
186 m2
12 m2
198 m2
Billie
10m
Minimum block width
4
1
2.5
1
1
202 m2
12 m2
214 m2
Internal areas
External areas
Total
Maggie
10m
Minimum block width
4
1
2.5
1
1
Internal areas
External areas
Total
209 m2
11 m2
220 m2
Looking for something more ?
Looking for something unique? Let us know your target market and preferred style, and we'll create a custom design that caters to your specific needs and preferences. We pride ourselves on our ability to deliver tailor-made solutions that align with your vision.

